Terrasse - 99 m²
Piscine - 48,2 m²
Salon - 84 m²
Suite parentale - 41,6 m²
Chambre 2 - 24,8 m²
Chambre 3 - 35 m²
Buanderie - 2,4 m²
Offrant une vue imprenable sur les paysages de Marrakech, le toit-terrasse est un espace privilégié alliant détente et élégance. Idéal pour des moments de convivialité ou de contemplation, il permet de profiter du climat doux et des couchers de soleil spectaculaires dans un cadre raffiné et exclusif.
Prix à partir de 6 850 000 MAD.
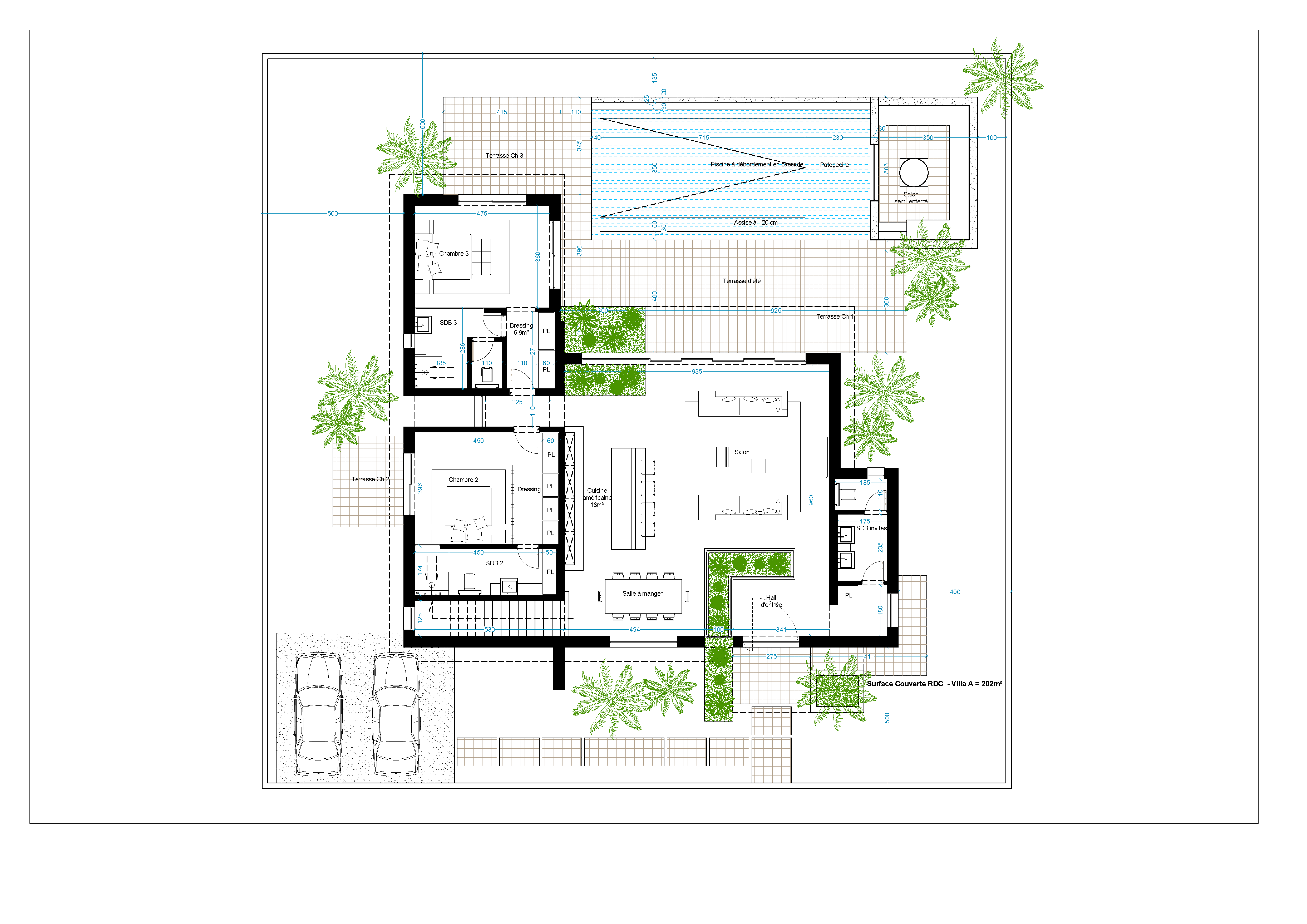
Villa Baya – Un Refuge d’Excellence à Terra
Située au sein du prestigieux projet Terra à Marrakech, la Villa Baya est une réalisation architecturale d’exception, mariant élégance contemporaine et traditions marocaines. Cette villa de plain-pied offre un cadre de vie spacieux et raffiné, conçu pour le confort et le bien-être de ses habitants.
La Villa Baya abrite trois chambres en suite, dont une somptueuse suite parentale de 41,6 m² avec baignoire, garantissant un espace de détente luxueux et une intimité préservée. Les deux autres chambres, respectivement de 35 m² et 24,8 m², offrent des volumes généreux et une atmosphère apaisante.
Pensée pour une fusion parfaite entre l’intérieur et l’extérieur, la Villa Baya propose un vaste salon de 84 m² et une cuisine ouverte, créant un espace convivial et lumineux, idéal pour recevoir. Une buanderie de 2,4 m² est également prévue pour optimiser le confort quotidien.
L’extérieur est conçu comme un véritable sanctuaire de détente. Profitez de votre piscine privée de 48,2 m², un espace raffiné où se ressourcer, et d’une sala extérieure avec coin feu, parfaite pour des soirées chaleureuses sous le ciel étoilé de Marrakech. Une vaste terrasse de 99 m² prolonge cet espace de vie en plein air, idéale pour profiter du climat doux et ensoleillé.
Enfin, la Villa Baya dispose d’un rooftop privé offrant une vue imprenable sur les paysages environnants, ajoutant une touche exclusive à cette résidence d’exception.
La Villa Baya incarne l’art de vivre luxueux et apaisant, au cœur de Marrakech.
Les villas Terra à Marrakech allient luxe et confort, avec des piscines privées, des jardins soignés et une architecture moderne. Un cadre idéal pour une vie raffinée.




© 2025 Terra Marrakech
Nous utilisons des cookies pour améliorer votre expérience. Votre consentement permet de traiter des données de navigation. Le refus peut limiter certaines fonctionnalités.